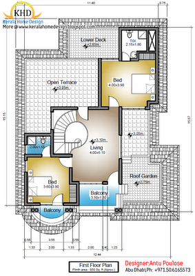
Home plan and elevation 2430 Sq. Ft Home Plan DetailsGround Floor : 1500 Sq. FtFirst Floor:930 Sq. FtTotal Area:2430 Sq. Ft Designer:Antu PouloseAbu Dhabi, UAE
0 comments:
Post a Comment